09 / 23
2025
Complete renovation of architect's own two-room apartment in a functionalist building in Prague's New Town…

> Pitkovice Apartment by Formafatal
> More Than Meets the Eye by No Architects
From the architect: Architect's own home is a project with many limitations, especially when it is a renovation of an existing building.
Being your own customer is in many ways more challenging than fulfilling a brief formulated by a client. There is no alternative but to accept the responsibility for all decisions and expose yourself to the risks that we as architects normally carefully debate with our clients.

My apartment is located in a building from the late 1930s, an honest embodiment of architectural modernism, a classic Prague tenement house from that era, with a tiled facade and small apartments, designed by architect Ladislav Šimek and built by his brother Jaroslav. And the saying "the shoemaker's children go barefoot" implies, the reconstruction of the apartment into its final form took almost 10 years. The questions I asked myself during the process of renovation were mainly focused on the conflict between preserving the strong spirit of the place and the degree of embodying the imprint of my own identity and invention. Which should be the winner? How to find a balance? Can anything prevail? Isn't the conclusion that the user naturally succumbs and adapts to the soul of the existing building, which he only slightly supplements or modifies with his work and presence?

The result, or, to be more specific, the way the finished work has influenced me, can be described by this quote from the well-known book Architecture of Happiness by Alain de Botton: "…a passion for architecture may turn us into aesthetes, eccentric figures who must watch over their houses with the vigilance of museum guards, patrolling their rooms in search of stains, a damp cloth or sponge in hand.“

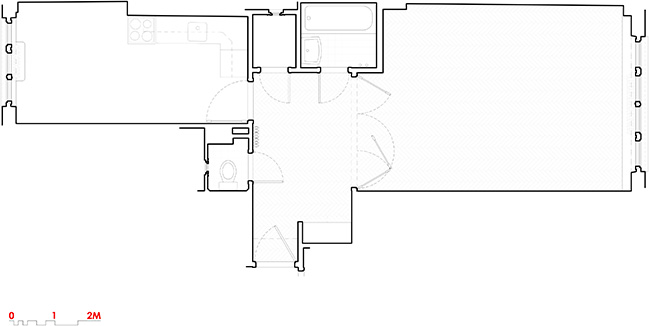
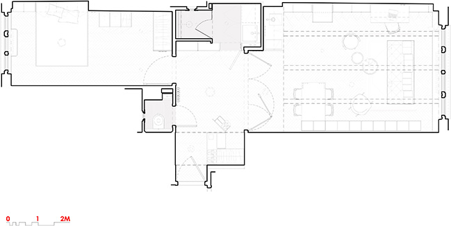
A complete architectural "update" was carried out, including all technical equipment of the apartment, floor construction, all surfaces, etc. It was decided to expose and clean the reinforced concrete ceiling in the living room (otherwise covered with soffit and plaster) and make it an original artistic element. The original windows, doors and all their respective fittings were renovated, the original oak parquet flooring replaced with an exact replica. The layout change consists mainly in the new use of the original kitchen and the complete demolition of the original pantry and bathroom, which were replaced by a new inserted furniture block containing storage spaces, a hidden generous bathroom and part of the kitchen. This new layer uses traditional materials (a combination of stained oak veneers and white lacquer), but in a completely new way, where a totally clean, minimalist new space is to be created. Great care has been taken in the appropriate combinations of original elements and details from the 1930s and new design pieces of furniture and accessories, as well as the choice of materials for all the new - custom-designed - built-in furniture, which determines the use of the spaces and their articulation.

The interior furnishings often include elements with a strong personal story, such as a set of four Thonet dining chairs from my great-grandparents' house, a Thonet armchair and an Anýž table lamp from the 1930s, which were used in the office of my great-uncle, the functionalist Ez12 tubular chair designed in 1930 by Karel Ort for the Gottwald company, ceiling lights, or several works from the same period by the Czech sculptor Jaroslav Horejc, who was connected to our family. They are then accompanied by rather minimalist contemporary products, such as the Fusion sofa by studio Nendo.
The stool – a pink piglet, gift from friends – in the hallway is a reminder not to take ourselves always so seriously as architects.

Architect: Martin Cenek Architecture
Location: Prague, Czech
Year: 2023
Usable floor area: 49 sqm
Photography: Alex Shoots Buildings



























Functionalist Apartment with Pink Piggy by Martin Cenek Architecture
09 / 23 / 2025 Complete renovation of architect's own two-room apartment in a functionalist building in Prague's New Town…
You might also like:
Recommended post: Casa Tao by HW Studio | Shade as a Space for Life
