12 / 04
2025
Located in Lagoa Santa, in the metropolitan region of Belo Horizonte, Tangram House occupies a gently sloping site on the edge of a lake. The house is placed at the highest point of the lot so that, from the street, it appears as a discreet horizontal line, almost blending with the horizon...

> Linho House by Tetro Architecture
> Seriema House by Tetro Architecture | Poetic Retreat
From the architect: Retaining walls, landscaped embankments and the built volume itself form a visual barrier to the outside. As soon as one enters, the street disappears: from inside the house, you see only trees, lawn and water.

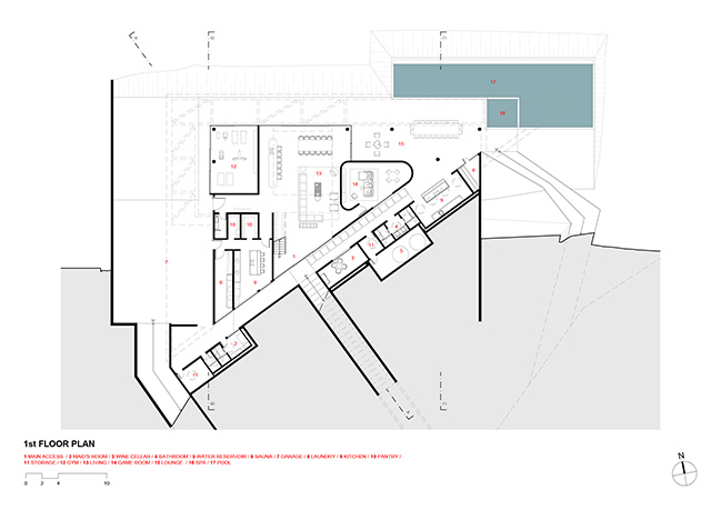
The project is organized around a triangular form, which inspires the name Tangram and unfolds into the roof in glued laminated timber. This roof, composed of a sequence of triangular planes, functions as a large shelter: it protects the privacy of the house toward the street and opens fully toward the lake. Light enters through skylights that cut the sky and illuminate the living spaces and circulation on the upper floor. The structure is mixed, combining the lightness of timber roofs and verandas with the solidity of exposed concrete slabs and walls, in dialogue with the stone walls that retain the slope of the terrain.

On the lower level lie the social areas – living room, kitchen, gourmet space, wine cellar and swimming pool – all facing the lake through large glass panes and generous verandas. Part of this program is embedded in the retaining wall itself, where the support kitchen, bathroom and wine cellar are located, creating an inhabited thickness between house and earth. On this floor, the contact with the landscape is direct: the water of the pool seems to extend the surface of the lake, and the interior flows outward with no clear boundaries.

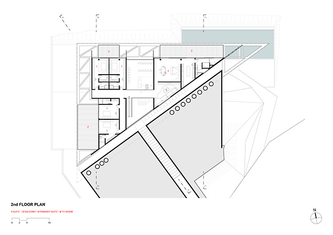
On the upper level, the private wing brings together a family room and five bedrooms: the master suite, two bedrooms for the children and two guest rooms. All of them open to the view, protected by the wide eave of the roof and by the distance from the street. Everyday life is always framed by nature, never by urban traffic.

Between the precise drawing of the structure and the softness of the landscape, Tangram House seeks to be less an object and more a passage: a house that shields itself from the movement of the street in order to open fully to the lake and vegetation, where the line of the building extends the horizon line and the triangular roof unfolds as a gesture of welcome toward nature.

Architect: TETRO Architecture
Location: Lagoa Santa, Minas Gerais, Brasil
Year: 2025
Plot Area: 5,000 sqm
Total Built Area: 1,450 sqm
Responsable Architects: Carlos Maia, Débora Mendes, Igor Macedo
Contributors: Bianca Carvalho, Bruno Bontempo, Bruna Maciel, Saulo Saraiva, Carolina Amaral, Ana Flávia Corrêa, Sabrina Freitas, Márcia Aline, Matheus Rosendo, Luisa Lage
Construction: TSV Engenharia
Landscaping: Flávia D'urso
Structure: MV Projetos
Photography: Manuel Sá























Tangram House by TETRO Architecture
12 / 04 / 2025 The project is organized around a triangular form, which inspires the name Tangram and unfolds into the roof in glued laminated timber…
You might also like:
Recommended post: Biology-Pharmacy-Chemistry Metro by Bernard Tschumi Architects
